Flávio Castro
estúdio
> sobre
> equipe
> serviços
> prêmios
> acadêmico
projetos
mídia
contato
Informações
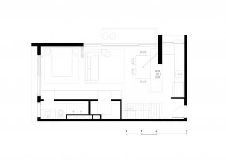
Desenho técnico
Modelo
apartamento Aimbere